Moderne Bürofläche mit bester Autobahnanbindung in MG-Ost
Informationen zur Immobilie:
Ort
41066 Mönchengladbach
Objektart
Gewerbeobjekt
Größe
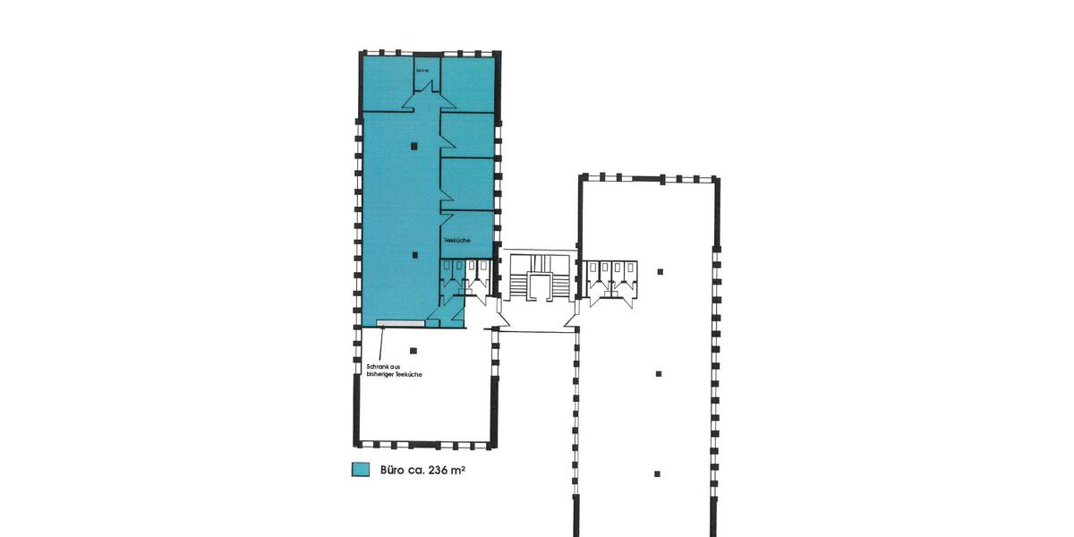
ca. 236,00 m²
1.865 €
Beschreibung:
Mehr zum Angebot Moderne Bürofläche mit bester Autobahnanbindung in MG-Ost:
# Objektbeschreibung
Über das repräsentative Eingangsportal gelangen Sie in diese gepflegte Büroimmobilie. Über die moderne Aufzugsanlage lässt sich die Büroeinheit im 1. Obergschoss bequem erreichen.
Die Mieteinheit besteht aus einem großzügigen, offen... mehr erfahren
# Objektbeschreibung
Über das repräsentative Eingangsportal gelangen Sie in diese gepflegte Büroimmobilie. Über die moderne Aufzugsanlage lässt sich die Büroeinheit im 1. Obergschoss bequem erreichen.
Die Mieteinheit besteht aus einem großzügigen, offen... mehr erfahren
weitere Gewerbeobjekte